Каркасный дом 5х6 с террасой и кладовой под одной кровлей, СНТ Виктория (Широкая речка)

Главная » Каталог объектов » Каркасные дома и бани » Каркасный дом 5х6 с террасой
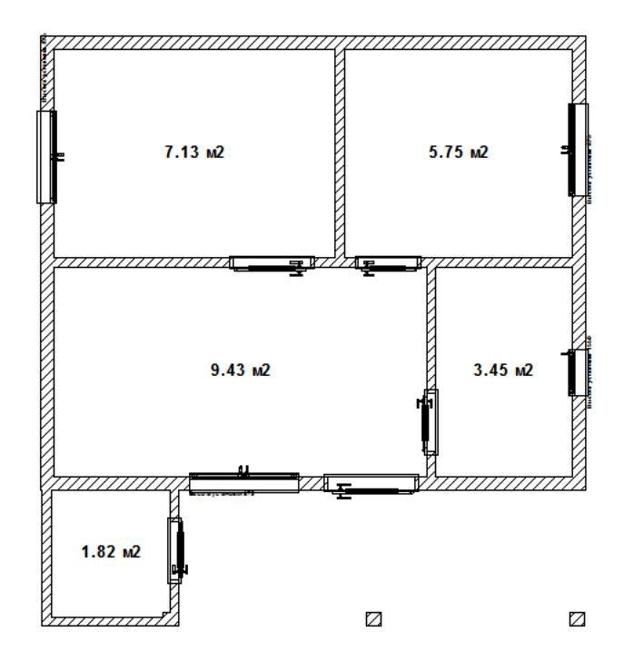
Дом № 21, СНТ Виктория
Площадь дома:
30м2
Размер дома:
5м х 6м
Этажность:
одноэтажный
Дополнительно:
терраса с кладовой, колеровка фасада
Срок строительства:
3 недели
Гарантия:
36 месяцев
1 200 000 р.
Купить
ОписаниеОтзывы

Комплектация Каркасного дома 5х6м с террасой 1.5х3.5м и кладовой 1.5х1.5м 

  • Температурный режим: сезонное проживание до -15°С;
  • Срок строительства 3 недели;
  • Фундамент: винтовые сваи 2500/6/200/89 мм; высота видимой части 600мм;
  • Этажность: одноэтажный;
  • Каркас стен: высота 2500 мм, толщина 100 мм; доска 50х100 мм;
  • Утеплитель: каменная вата УРСА Terra 34 PN;
  • Наружная обшивка стен: ОСП 9 мм;
  • Внутренняя обшивка стен: евровагонка сосна, сорт АВ;
  • Настил пола: плита ОСП-3 22 мм;
  • Кровля: двухскатная, профиллированный лист С-21 0.45 цвет «шоколад»;
  • Окно: 4шт — профиль REHAU 3 камерный, стеклопакет 1 камерный, подоконник, слив, откосы, обналичка, антимоскитная сетка;
  • Двери: дверь входная — сейф подъездная; межкомнатные - филенчатые;
  • Дополнительно: терраса с кладовой 1.5м х 6м, крыльцо 1.2м х 1.2м, покрытие фасада защитным ЛКП.
Похожие товары
Остались вопросы? Мы перезвоним!
Контакты

ул.Сибирский тракт 8б оф.130
+7 (343) 201-98-59

+7 (343) 200-98-59

 +7 (904) 163 67 91

Обратный звонок

Данный сайт использует файлы cookie и прочие похожие технологии. В том числе, мы обрабатываем Ваш IP-адрес для определения региона местоположения. Используя данный сайт, вы подтверждаете свое согласие с политикой конфиденциальности сайта.
OK